11 марта в новом корпусе Государственной Третьяковской галереи подвели итоги конкурса архитектурных проектов для Арктической зоны России «Неочевидное. Арктика», в котором участвовали студенты и молодые архитекторы до 30 лет.

Наш коллега Глеб Чуркин представил проект «Линия Арктики» и стал победителем в номинации «Архитектурный спидкубинг», а также получил диплом профессионального выбора от агентства стратегического развития «Север».

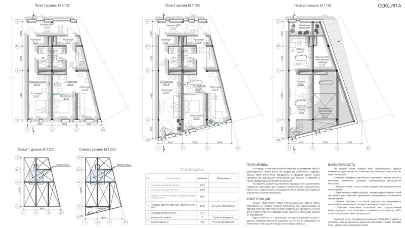
Цель проекта – раскрыть возможности prefab-архитектуры в условиях Севера, а также показать возможности трансформации как функций, так и геометрии модульных зданий, в зависимости от нужд контекста. Этот проект – не громкое архитектурное высказывание, а попытка найти баланс между природным северным контекстом и современным пониманием комфорта, сопоставить понятие «Дом» и «Город», создать маяк и центр притяжения, но при этом оставить толику личного пространства и тихого уюта.

Проект “Линия Арктики” представляет собой трансформируемое и полифункциональное здание с большим спектром как функций, так и сценариев применения. Основное место применения - Березовский и Белоярский районы ХМАО (Югры). Это лесистая и речная местность с захватывающими видами на тайгу и разливы рек. Главная идея всего проекта - масштабирование блок-секций в экзогорода - структуры, внутри которых находятся все функции для полноценной жизни людей. Это позволит не покидать теплый контур города, но при этом жить, работать и отдыхать в комфортных условиях в непосредственной близости друг от друга. То есть экзоструктура, из которой нет надобности выходить на улицу и сталкиваться с суровой арктической погодой.

«Вдохновение пришло в период новогодних праздников, когда снимается груз повседневной ответственности, а душа требует ежегодных перемен. Лейтмотив всей работы (Архитектура как трансформируемая структура) совпал с желанием изучить новые типы конструктивных систем, в частности блочно-модульную. В таком проектировании преобладает рациональное звено, а все декоративное отпадает. Понимание принципов арктического строительства оттачивает логику конструирования всей архитектуры в целом, поэтому эта работа позволила соединить воедино все свои знания, а также выделить те моменты, на которые целесообразно обращать внимание в других проектах, вне зависимости от региона строительства», — поделился с нами Глеб.